鐵路一體化逆變電源500W
電源類型:軍用一體化逆變電源
規格型號:ZDR-YH500-24S220X
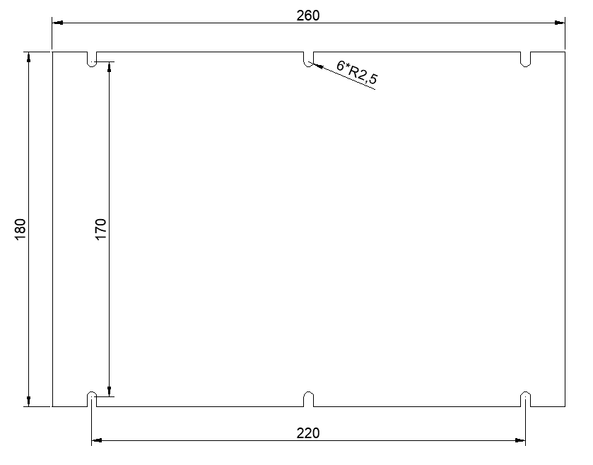
電源尺寸:260mmx180mmx80mm
輸入電壓:DC24V(20-30V),DC48V(36-72V),DC110(40-160V)
輸出電壓:正弦波AC220V或AC110V
輸出功率:500W






